Description

OFIM Immobilier vous propose à la vente un appartement moderne situé dans une résidence avec piscine à Albion, à quelques pas seulement du Mall.

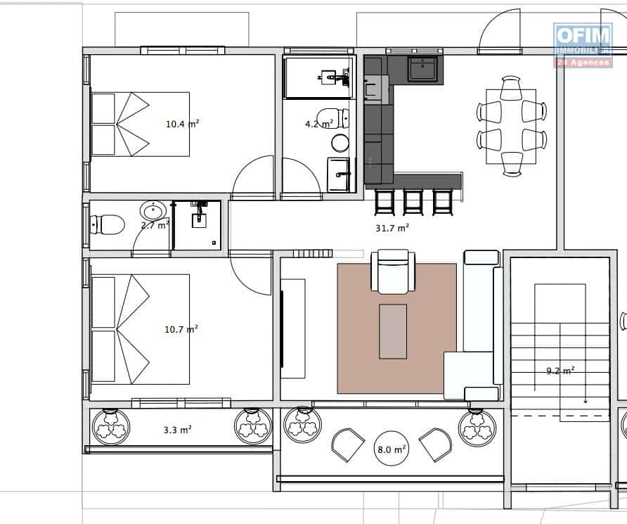
Ce nouveau programme immobilier allie confort, design contemporain et emplacement privilégié. D’une surface de 75 m², l’appartement bénéficie d’espaces lumineux et bien agencés, comprenant un séjour spacieux avec coin repas, une cuisine ouverte, une terrasse couverte, deux chambres dont une suite parentale avec salle de bains privative, ainsi qu’une seconde salle de bains. Une place de parking est également incluse. Les résidents pourront profiter de la piscine commune et d’un cadre calme et verdoyant.

  • La livraison est prévue pour avril 2026, faisant de ce bien un investissement sûr et attractif à ne pas manquer à Albion.

Pour plus d’informations ou pour organiser une visite, contactez Norbert Couret au (+230) 52 57 07 58 ou par email à couret@ofim.mu.

voir le bien sur ofim.mu

Adresse:

  • Adresse: Albion, Maurice
  • Pays: Mauritius
  • Région:
  • Ville:
  • Quartier :
Ouvrir sur Google Maps

Contact

OFIM Flic en Flac

Agence immobilière
Petite marie street
(00 230) 453 89 18
flicenflac@ofim.mu
Autres biens

En utilisant ce formulaire, vous acceptez le stockage et le traitement de vos données par ce site

Notes & commentaires

0 0 Avis
  • 5 0%
  • 4 0%
  • 3 0%
  • 2 0%
  • 1 0%

0 Avis